Terug naar overzicht »

GEEN 2e LEVEN

2022-2023 Ellen Brouwers Oisterwijk

Herbestemming ‘Levensconcept’
Niet gerealiseerd ondanks alle inspanningen

Levensconcept geen toekomst bij Dela in Vlijmen. Filosofie past in de visie van Dela, echter er zijn geen gebruikers en het terreinkaart uitbreiden.Voorstel E B: tweede leven voor de levenskluizen. Contact met Noël Josemans, Den Bosch ; De Grondstoffendienst. Hij heeft het uitgezet bij diverse instanties en Stichting Welgement Biest-Houtakker. De transportkosten speelde parten bij het verplaatsen.

Materiaal/Techniek
ACM, glas, hout, hout, metaal en beton

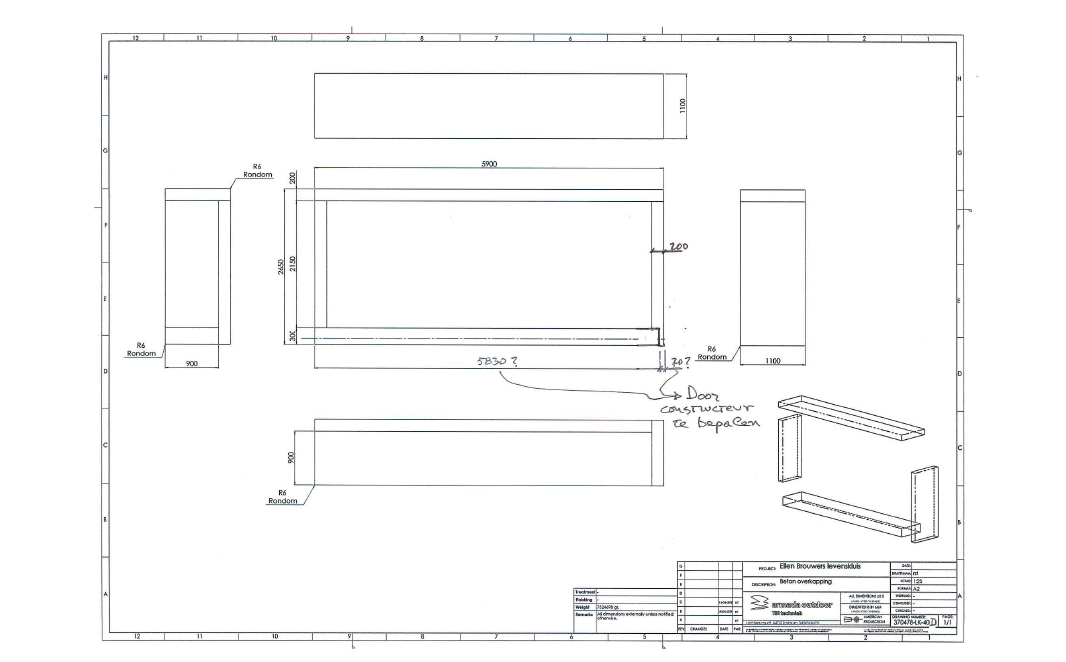
Afmetingen
Module; 12 stuks 40cm b x 40 cm h x 850 mm  d
Beton overkapping;  5900 b x 2650 h x 1100 d

Zie 2009 In gebruikname Levensconcept Dela Vrijmen

Hierlangs foto impressie Assamblage 2009; met dank aan Peter Kock | Product Manager | Armada Mobility